主要特点:
1、防爆蓄电池升降平台车广泛适用于石油、化工、军工、纺织、仓库、制漆、制药等行业,能在含可燃气体、液体等爆炸性环境1区、2区危险场所作业;
2、采用科学的人机工程设计有效地保证了整机的可靠性、稳定性和作业效率;
3、交流免维护防爆电机,动力强劲,无碳刷,使用维护成本低,作业效率高;
4、整车具有噪音小、无污染、安全性高、转向敏捷、性能稳定、操作简单、维修方便等特点;
5、防爆电源使用寿命长,充电快捷,是理想的绿色短途物料运输工具;
6、可为用户订做各种大吨位,大台面的防爆升降平台车;
|
货号
|
A5180
|
A5181
|
A5182
|
A5183
|
|
类型
|
单剪式
|
双剪式
|
单剪式
|
双剪式
|
|
额定载重量
|
kg
|
500
|
500
|
800
|
800
|
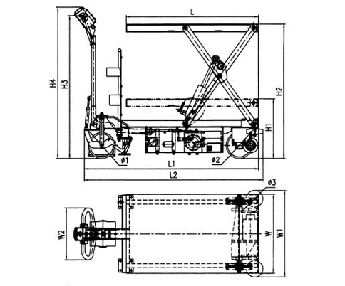
|
台面长度(L)
|
mm
|
1020
|
1020
|
1020
|
1020
|
|
台面宽度(W)
|
mm
|
610
|
610
|
610
|
610
|
|
台面闭合高度(H1)
|
mm
|
460
|
470
|
460
|
520
|
|
台面起升总高(H2)
|
mm
|
990
|
1700
|
1050
|
1850
|
|
手柄总高(H4)
|
mm
|
1165
|
1165
|
1165
|
1165
|
|
整车总长(L2)
|
mm
|
1380
|
1380
|
1380
|
1380
|
|
使用区域
|
1区,2区
|
|
防爆标识
|
Ex d s ⅡB T4 Gb
|
◆ 电话技术支持
卡嘉(C-GA )提供系列化的服务以满足客户需求。卡嘉(C-GA) 的电话技术支持服务旨在第一时间快速正确的处理合作伙伴的问题,提供正常工作时间和正常工作时间之外的加时远程电话技术支持。
服务概述
以下(“服务说明”)详细阐述了卡嘉电话技术支持服务所包含的远程服务内容。通过该支持服务计划,您可在本服务说明规定的时间段之内通过电话获得卡嘉技术支持服务。呼叫卡嘉报价单订单及其他媒体所标明的技术支持号码,获得技术支持服务。
以上技术支持号码服务面向中国大陆地区,港澳台及其他地区服务参见其他区域服务说明。
增强型电话技术支持服务提供: 卡嘉远程电话技术支持
|
国家和地区
|
电话技术支持时间
|
|
中国大陆及港澳台区域
|
周一至周五早8:30-下午5:30
|
|
周六早8:30-下午5:30
|
|
其他地区
|
参见卡嘉其他区域服务说明
|
客户职责
如卡嘉产品出现任何故障, 客户应呼叫卡嘉报价单、订单及其他媒体标明的免费技术支持号码,联系卡嘉技术支持部门。
A、呼叫卡嘉之前, 客户应准备妥当下列信息:
1) 客户在卡嘉注册的客户编号
2)产品货号型号
3)产品序列号
4)用户应身处设备所在位置,并遵循卡嘉技术人员的指导
B、与卡嘉进行电话交流时,客户应准备妥当下列信息:
1)故障的详细说明
2)在条件允许的情况下,准备故障的文档说明及设备故障图片其它重要信息。
机密性或专有权利主张:客户允诺,任何提供或发送至卡嘉(通过电话、邮件或其它方式)的信息或数据非客户机密或专有。
本服务说明服从客户与卡嘉签署的更高级别协议的条款、条件,并作为其补充。在此类协议不存在的情况下,本文将受卡嘉标准的销售、服务和技术支持条款和条件的限制并作为其补充,后者可致函索取或访问www.c-ga.com
获得。在本文与此类条款或条件相抵触时,应以本文为准。卡嘉有权对本文及其描述的产品和服务随时进行增补或修改,恕不另行通知。
◆ 在线技术支持
卡嘉所面向的所有终端客户在服务期限内均可享受Web 支持和卡嘉技术支持服务。如果产品发生故障, 客户可以直接通过互联网登录卡嘉网站服务专区,搜索查询专项产品服务或通知卡嘉为客户上门提供技术人员和所需部件。上门支持服务将在客户提出服务请求的国家和地区内提供,且限于有能力提供客户所购产品和部件的国家和地区。
具体服务年限请见报价单,该期限过后的在线支持服务需要根据卡嘉服务条款确定,如需另行付费, 卡嘉将在第一时间通知客户。尽管存在服务年限的规定,易损件、电池和其他等卡嘉耗材和附件按照特定的支持服务进行。
服务说明
卡嘉在其技术支持网站(www.c-ga.com)上提供包含电子邮件支持在内的综合性免费在线支持。大多数支持问题都可通过卡嘉的在线问题诊断平台和信息资源得到解答,例如:
1)与卡嘉技术人员一样,访问卡嘉的知识管理系统,查询问题诊断方法、故障诊断信息和常见问题(FAQ)等大量参考资料。
2) 通过键入客户编号获取有关您的企业交易信息及购买产品的维护保养信息。
3)获取设备保养及维护知识,注册获取知识更新通知。
4)在线观看产品使用、维护、保养及维修视频。
5)加入讨论组,与其他客户和卡嘉专业技术人员交流。
◆ 上门服务技术支持
上门服务为客户的卡嘉的产品提供在购买地区以外的服务与支持。卡嘉(上海)提供的该服务仅限于在中国大陆地区。当客户在其所在国家或地区之外遇到问题时, 可在支持其产品的任何国家或地区要求获得全球服务。服务细则和部件供货情况在不同国家或地区会有所不同。客户应明确,受产品所在地距离和交通状况影响,各地提供的上门服务反应速度会有所不同。
客户可通过三种途径获取技术支持:1) 客户可呼叫其当前所在地区的呼叫中心。2) 客户可呼叫报价单上的客户服务代表或技术支持代表。3)如果需要维修, 卡嘉技术人员将通过客户所在地的卡嘉呼叫中心安排服务。卡嘉不排除上门服务可能由卡嘉服务合作伙伴提供。